Добро пожаловать на http://vipplan.ru

Випплан Магнитогорск - это тысячи проектов домов в нашем каталоге!

Вы всегда сможете найти для себя проект дома вашей мечты! Даже если этого не случилось, мы готовы в любую минуту предложить проект индивидуального дома.

Забыли пароль?
Вы еще не регистрировались?

Перейдите по ссылке ниже на страницу регистрации.

Регистрация...

Внимание!!!

В проектную документацию могут быть внесены изменения любой сложности, в соответствии в Вашими пожеланиями!

Полезные статьи

Проект дома

Строительство дома начинается с подготовительного этапа, основной частью которого является проект. Разработка дизайнерского проекта сопровождается оформлением документов после выбора участка....

Газобетонные перекрытия

Перекрытия из газобетонных плит, устанавливаются без применения подъемников и кранов. Строители устанавливают прочные и, что немаловажно, легкие газоблоки без помощи техники. Ячеистый бетон (пенобетон и газобетон) нашел широкое применение в домах из пенобетона и газобетона в Магнитогорске...

Проекты домов и коттеджей > Каталог проектов домов > Проект одноэтажного дома с чердаком Vg2261

Проект одноэтажного дома с чердаком Vg2261

Проект одноэтажного дома с чердаком
Зарегистрируйтесь

Проект № Vg2261


Техническое описание
Общая площадь: 212.35 м2
Жилая площадь: 71.08 м2
Высота здания: 7.46 м
Размеры дома: 10м×15.7м
Кол-во комнат: 4
Цокольный этаж: нет
Гараж: нет
Мансарда: нет

Kонструкция
Фундамент: Винтовые сваи.
Перекрытия: Деревянные балки.
Материал стен: Каркас

Архитектурный раздел
Конструктивный раздел
АР+КР - 64 000 (Со скидкой 20%)
Проект индивидуального одноэтажного жилого дома с чердак с размерами здания 10,00 x 15,70 м. Наружная отделка здания – штукатурка. Фундамент – винтовые сваи. Наружные стены – деревянный каркас с отделкой штукатуркой. Внутренние стены – деревянный каркас. Перегородки – каркасные с ГКЛ. Пол 1 этажа, межэтажно перекрытие - деревянные балки. Крыша двускатная. Кровля – металлочерепица. Окна — металлопластиковые.
Генплан застройки участка / Паспорт проекта 7000 руб / 10000 руб
Инженерный раздел (полный) 106000 руб
Смета на строительство 53000 руб
Теплотехнический расчет материалов стен Бесплатно
Стоимость проекта со незначительнми изменениями 74700 руб
Стоимость проекта со средними изменениями* 90600 руб
Стоимость проекта со значительными изменениями** 94800 руб

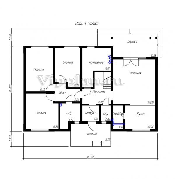
План первого этажа


Тамбур — 3,86 кв м
С/у — 2,28 кв м
Прихожая — 8,3 кв м
Холл — 5,26 кв м
С/у — 5,97 кв м
Спальня — 15,38 кв м
Спальня — 16,29 кв м
Спальня — 12,71 кв м
Помещение — 11,55 кв м
Гостиная — 26,7 кв м
Кухня — 10,08 кв м
Кладовая — 3,5 кв м

План мансардного этажа


Чердачное помещение — 129,24 кв м
Проект одноэтажного дома с чердаком Проект одноэтажного дома с чердаком Проект одноэтажного дома с чердаком Проект одноэтажного дома с чердаком

Модификации проектов

Внесение изменений и привязка к участку строительства

В любой из проектов от компании VIPplan - Магнитогорск по вашему желанию могут быть внесены изменения в материалы стен, материалы наружной отделки дома, а также будет произведена адаптация проекта под конкретный регион строительства (с учетом грунтов региона, геологических особенностей вашего участка и местных климатических условий) - БЕСПЛАТНО !!! (кроме проектов со скидкой и проектов наших партнеров).

Любой из проектов, размещенных на сайте magnitogorsk.vipplan.ru мы можем выполнить из требуемых вам строительных материалов: ячеистый бетон (газобетон, пеноблок), керамоблок, кирпич, шлакоблок, бетонный блок, дерево (брус, клееный брус), каркасная технология (деревянный каркас, металлокаркас (ЛСТК)).

Фасад дома и его наружную отделку так же возможно выполнить с применением различных облицовочных материалов: структурной штукатурки, (с утеплителем и без), сайдингом (пластиковый или металлосайдинг), фиброплитами, кирпича.

 
6 Избранные
проекты

Доставка проектов по России: Москва (Московская область), Санкт-Петербург (Ленинградская область), Краснодар, Ростов-на-Дону, Ставрополь, Сочи, Волгоград, Новосибирск, Белгород, Брянск, Воронеж, Саратов, Хабаровск, Астрахань, Нальчик, Владикавказ, Екатеринбург, Тюмень, Самара, Нижний Новгород, Казань, Пермь, Уфа, Челябинск, Красноярск, Ханты-Мансийск, Иркутск, Курган, Оренбург, Омск, Томск, Барнаул, Новокузнецк, Кемерово, Абакан, Чита, Якутск, Южно-Сахалинск, Петропавловск-Камчатский и страны ближнего зарубежья: Белоруссия, Украина, Казахстан